-
-
-
Tổng tiền thanh toán:
-
5 thông số kỹ thuật thang máy gia đình chủ nhà cần biết
Friday,
24/12/2021
0
Thông số kỹ thuật thang máy là những thông tin quan trọng nhất, thể hiện chất lượng, quy cách chi tiết của thiết bị. Nắm được các thông tin này, người dùng sẽ chọn được loại thang máy phù hợp nhất với nhu cầu và đặc điểm công trình.
Đối với kỹ sư, quá trình lắp đặt, dịch vụ bảo dưỡng, sửa chữa hiệu quả, khoa học nhất. Cùng điểm danh 5 thông số thang máy gia đình cần được quan tâm nhất dưới đây.
Các thông số kỹ thuật thang máy cơ bản
1. Tải trọng thang máy
Cần quan tâm tới tải trọng thang máy để lựa chọn loại thang phù hợp với nhu cầu, mục đích sử dụng. Đồng thời, hiểu rõ về tải trọng cũng giúp chủ đầu tư tiết kiệm được diện tích lắp đặt thang máy, tiết kiệm được chi phí đầu tư. Bởi vì, thông thường tải trọng thang máy càng cao thì yêu cầu về không gian lắp đặt phải càng rộng, kéo theo chi phí cao và có thể gây lãng phí. Do đó, mỗi một công trình thì sẽ cần một chiếc thang máy có tải trọng phù hợp.
Khi chọn tải trọng thang máy cho công trình của mình, bạn cần quan tâm tới các yếu tố sau:
-
Số người dùng thang máy thường xuyên: Nếu số lượng người sử dụng ít, khoảng 3 đến 4 người phạm vi gia đình thì chỉ cần chọn thang máy có tải trọng 250kg. Nếu gia đình bạn có từ 4 đến 6 người thì xem xét loại thang có tải trọng từ 320 đến 450kg.
-
Hành trình tối đa của thang máy: Đây cũng là yếu tố sẽ ảnh hưởng tới việc chọn tải trọng của thang máy.
-
Loại hình công trình: Tùy vào công trình là nhà ở, chung cư hay biệt thự ... mà chọn tải trọng thang máy phù hợp.
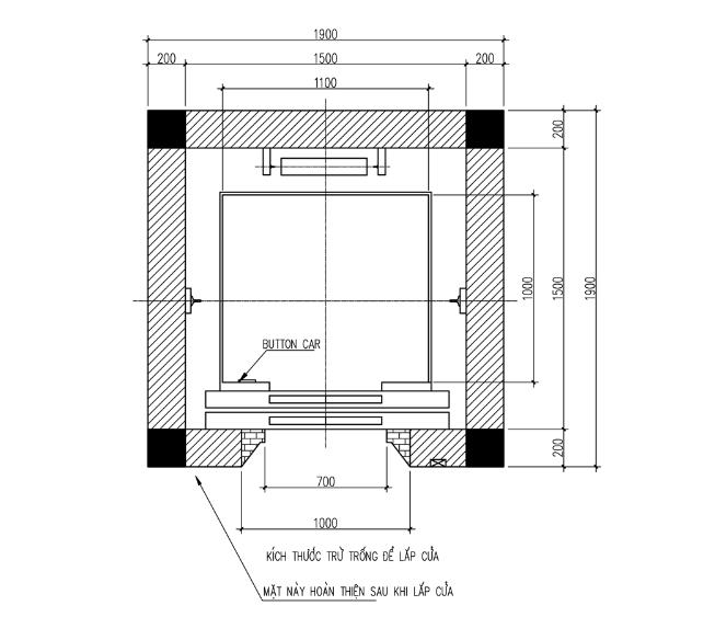
2. Kích thước giếng thang
Đây cũng là một thông số kỹ thuật thang máy rất cần được quan tâm. Giếng thang chính là phần không gian hình lăng trụ để cho cabin của thang máy có thể vận hành lên xuống. Thông số này phụ thuộc vào tải trọng cũng như chủng loại thang máy và diện tích của toàn công trình. Về kỹ thuật, kích thước giếng thang được đo chính là phần kích thước mặt cắt ngang của giếng thang.

(Thông số hố thang máy gia đình)
3. Kích thước hố pit
Hố PIT thang máy chính là phần hố nằm dưới cùng của giếng thang tính từ mặt sàn tầng thấp nhất trở xuống. Hố PIT thông thường sẽ được thiết kế ở vị trí âm so với độ cao của mặt đất.

Hố PIT chính là nơi để lắp các thiết bị giảm chấn cho thang máy. Đây cũng là nơi đảm bảo không gian an toàn nếu thang máy vượt quá hành trình, tránh va chạm cabin khi thang máy dừng. Ngoài ra, đây cũng là không gian để kỹ thuật viên thao tác bảo trì, sửa chữa thang máy. Yêu cầu cơ bản của hố PIT thang máy là luôn luôn phải đảm bảo khô ráo.
4. Chiều cao tầng trên cùng
Chiều cao tầng trên cùng hay còn có tên gọi là chiều cao OH (overhead). Đây là khoảng cách từ mặt sàn điểm dừng trên cùng của thang máy đến đáy phòng máy hoặc trần nhà (nếu không có phòng máy)
Mỗi một loại thang máy thì sẽ có yêu cầu về độ cao OH cụ thể, không giống nhau. Bởi thông số này phụ thuộc vào các yếu tố dưới đây:
-
Tốc độ thang máy: Đối với các thang máy càng có tốc độ cao thì OH tiêu chuẩn càng phải cao. Chẳng hạn thang máy gia đình có tốc độ thấp nên chiều cao OH tối thiểu là 3500mm. Nhưng với những thang máy có tốc độ 90m/p thì chiều cao OH tối thiểu là 4500mm
-
Vị trí lắp đặt máy: Thông thường, thang máy có phòng máy thì chiều cao OH sẽ thấp hơn loại thang máy không có phòng máy. Tất nhiên, sự so sánh này là với cùng 1 mức tốc độ.
-
Hãng sản xuất: Vì mỗi một nhà sản xuất sẽ sử dụng loại máy kéo khác nhau, thiết kế chi tiết khác nhau nên chiều cao OH cũng sẽ không giống nhau.
Chiều cao OH là gì?
5. Thông số cơ bản của dòng thang máy được sử dụng
Như đã đề cập ở trên, thông số của từng hãng sản xuất, từng loại thang máy là không giống nhau. Ngoài 4 thông số kỹ thuật thang máy tiêu biểu nêu trên, mỗi một thiết bị thang máy cụ thể sẽ có các thông số cơ bản mà khách hàng cần phải đặc biệt quan tâm. Cụ thể đó là: Model, hãng sản xuất, xuất xứ, vật liệu, nguồn điện, công suất động cơ, hệ thống truyền động, cấu trúc hố thang, loại cửa thang máy.
Nắm được thông số kỹ thuật thang máy là điều rất quan trọng để lựa chọn loại thang phù hợp, tối ưu chi phí cho công trình nhưng đảm bảo chất lượng và hiệu quả sử dụng tốt nhất. Nếu bạn chưa hiểu sâu về các con số này, hãy để các nhà cung cấp uy tín, với đội ngũ kỹ thuật giỏi chuyên môn tư vấn đầy đủ và chính xác cho bạn nhé.
Đang cập nhật bài viết